Quartier am Zeughaus
Christoph-Probst-Weg 1-4, Hamburg-Eppendorf
provisionsfrei
- ab 393 QM
- bis 2.698 QM
- Preis: € 18,50
- Nebenkosten: € 4,50
- Bezug: kurzfristig
Mietpreis ab
€ 18,50pro QM
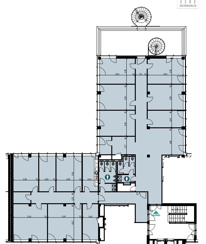
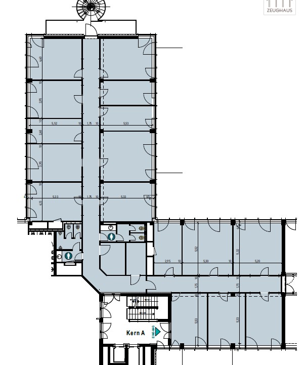
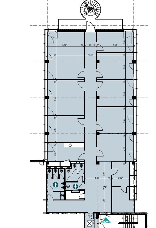
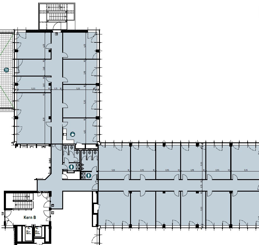
Flächenplan
| Stock | Gebäude A | Gebäude B | Gebäude C | Gebäude D | Freie Mietfläche | |
|---|---|---|---|---|---|---|
| 5 | vermietet - | | ||||
| 4 | vermietet 517 QM
![]() vermietet 517 QM | | ||||
| 3 | vermietet vermietet 1.053 QM
![]() vermietet 1.053 QM | | ||||
| 2 | vermietet 393 QM
![]() vermietet 393 QM | | ||||
| 1 | vermietet vermietet 735 QM
![]() 735 QM | | ||||
| EG | vermietet vermietet vermietet - | | ||||
Lichtdurchflutete Neubau-Büroflächen in Eppendorf mieten.
Sucht ihr ein Büro in Eppendorf? Dann kommt ihr am "Quartier am Zeughaus" nicht vorbei. Der in doppelter Kreuzform errichtete Bürohausneubau aus den Jahren 2005 bzw. 2008 (2. Bauabschnitt) wurde dem benachbarten ehem. Fernmeldezeughauses nachempfunden und mit einer hochwertigen Fassade versehen.
Viele Flächen verfügen über einladende Balkon- oder Terrassenflächen, von denen Ihr ins Grüne blickt. Durch große Fenster Elemente sind die Flächen hell und lichtdurchflutet. Unterstützt wird der helle Charme sicherlich auch durch den hochwertigen Ausbau mit Glaswänden und hellen Wandoberflächen.
Insgesamt gehören ausreichend Stellplätze zum Gebäude, die sich sowohl vor als auch unter dem Objekt, in der hauseigenen Tiefgarage, befinden.
Ausstattung
- außenliegender Sonnenschutz
- Balkon/Terrasse
- Barrierefrei
- Beleuchtung über Stehleuchten
- Fahrradstellplätze
- Glasfaser
- E-Ladesäulen
- Tiefgarage
- Verkabelung über Bodentanks
Besonderheiten
- Toller Ausblick
- Denkmalschutz
- Gastronomie im Haus
- Grüne Umgebung
- Lagerflächen
- Provisionsfreie Anmietung
- Ruhige Lage
- viel Tageslicht
Ich interessiere mich für die Immobilie Quartier am Zeughaus und würde gerne einen Besichtigungstermin vereinbaren.
Angebote in der Nähe
Hier findest du weitere Büros & Shared-Offices ganz in der Nähe.
Büropark bei Hagenbeck
Julius Vosseler Str. 40 42, HH-Eimsbüttel
ab 398 QM
bis 1.467 QM- Besichtigung



