RAPPOLT HAUS
Mönckebergstraße 11, Hamburg-Altstadt (City)
- ab 382 QM
- bis 1543 QM
- Preis: € 23,50
- Nebenkosten: € 4,00
- Bezug: 01.02.2026
€ 23,50pro QM
Flächenplan
| Stock | Gebäude A | Freie Mietfläche |
|---|---|---|
| 6 | vermietet - | |
| 5 | vermietet - | |
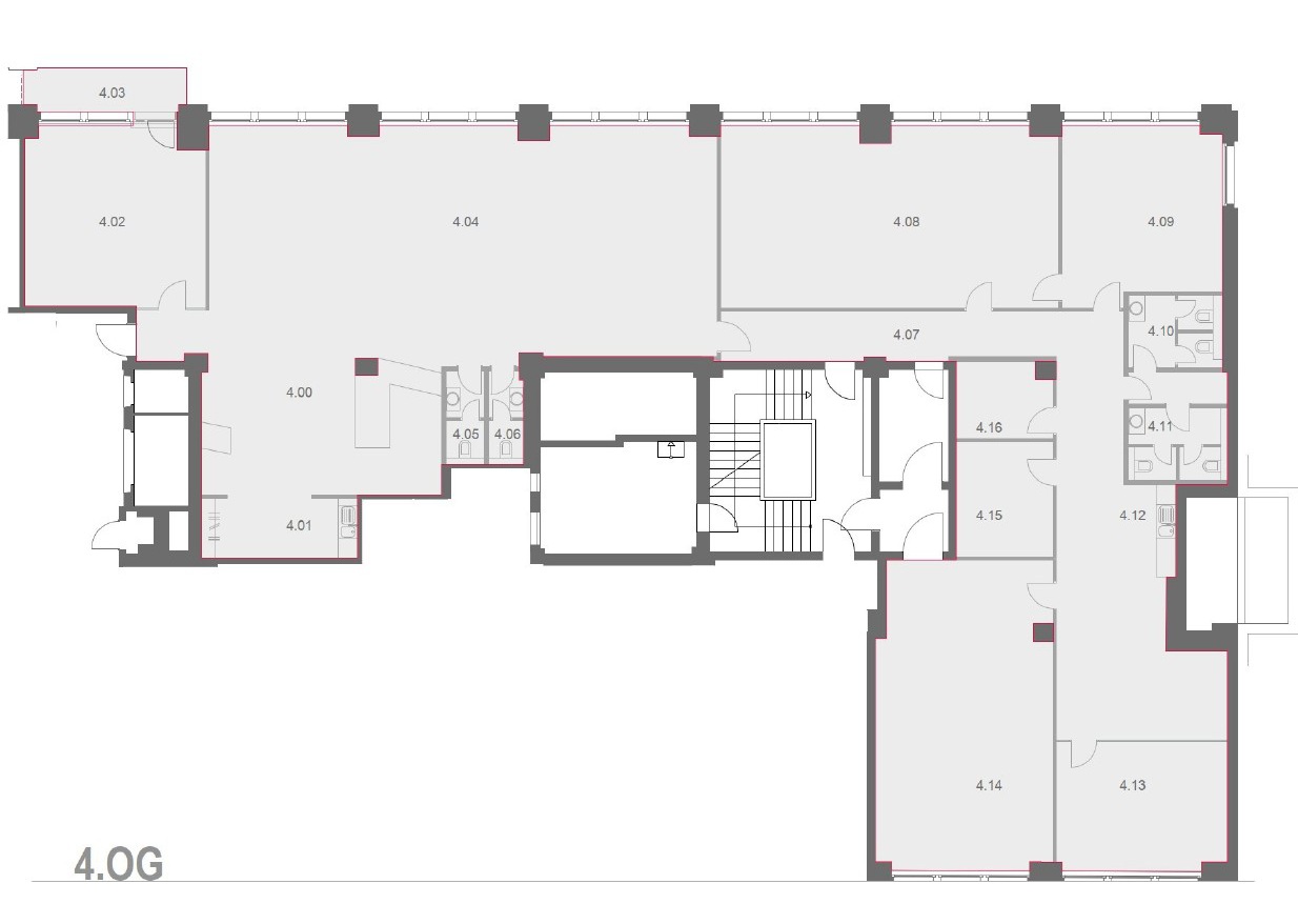
| 4 | vermietet 464 QM
![]() | 464 QM |
| 3 | vermietet - | |
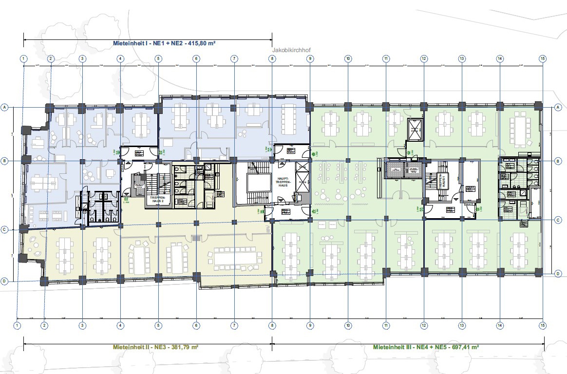
| 2 | 1.079 QM
![]() 1.079 QM | |
| 1 | vermietet - | |
| EG | - |
Büros in bester Citylage mieten - Mönckebergstraße, Spitalerstraße Gerhart-Hauptmann-Platz!
Dieser Unternehmensstandort bietet Euch neben einer hervorragenden Anbindung an den ÖPNV zahlreiche Einkaufsmöglichkeiten, verschiedenste gastronomische Einrichtungen, exklusive Einzelhandelsgeschäfte, Banken, Hotels und vieles mehr.
Die Immobilie selbst steht teilweise unter Denkmalschutz und wurde unter Berücksichtigung dessen umfangreich saniert. Über den aufgearbeiteten Eingangsbereich erschließt Ihr dieses Büro- und Geschäftshaus und gelangt über mehrere Personenaufzüge in die gewünschten Büroetagen. Die Büroflächen selbst bestechen heute durch eine hochwertige Ausstattung, einer hohen Flächeneffizienz sowie einer guten Belichtungssituation und werden in Abstimmung mit dem neuen Mieter ausgebaut.
Wenn Ihr also nach einer Bürofläche zu fairen Preisen inmitten der Hamburger City sucht, seid Ihr hier genau richtig!
Ausstattung
- Balkon/Terrasse
- Barrierefrei
- Beleuchtung über Stehleuchten
- Glasfaser
- innenliegender Blendschutz
- Lastenaufzug
Besonderheiten
- Denkmalschutz
- Gastronomie im Haus
- gute ÖPNV Anbindung
- Lagerflächen
- Provisionsfreie Anmietung
- viel Tageslicht
Angebote in der Nähe
Hier findest du weitere Büros & Shared-Offices ganz in der Nähe.

