BORNHOLDHAUS
Exklusivste Adresse für Ihr Büro mieten. Balkon und Fleetblick!
Neuer Wall 80, Hamburg-Neustadt
provisionspflichtig
- ab 142 QM
- bis 1.127 QM
- Preis: € 31,00 - 36,00
- NK: € 6,00
- Bezug: kurzfristig
Mietpreis ab
€ 31,00pro QM
Übersicht
| Stock | Gebäude A | Freie Mietfläche |
|---|---|---|
| 7 | vermietet - | |
| 6 | vermietet - | |
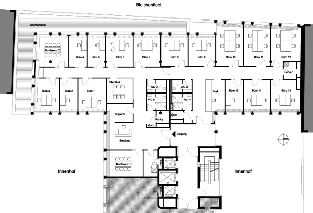
| 5 | 690 QM
![]() 690 QM | |
| 4 | vermietet vermietet | - |
| 3 | vermietet - | |
| 2 | 295 QM
![]() 295 QM | |
| 1 | vermietet - | |
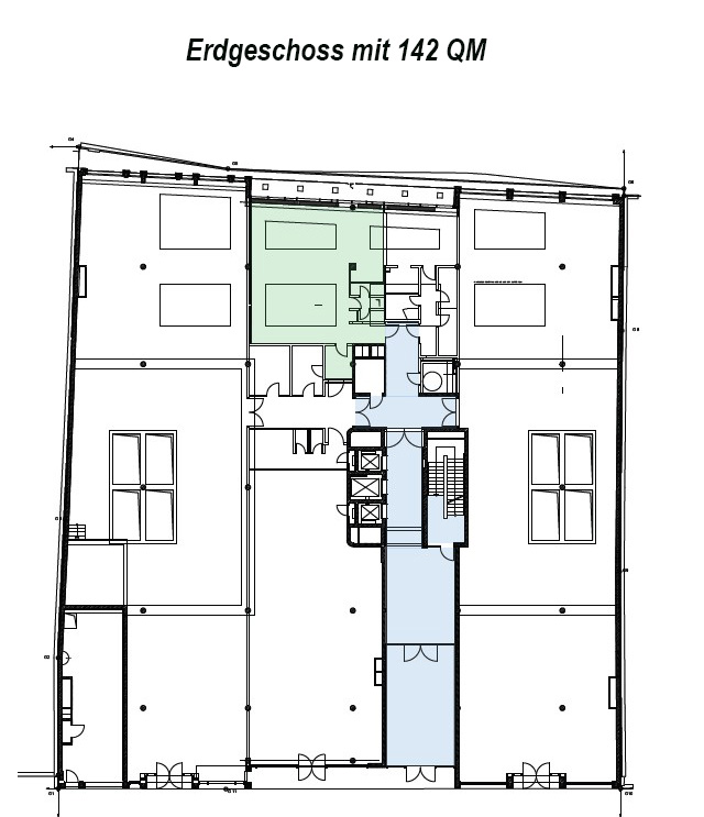
| EG | 142 QM
![]() 142 QM | |
Exklusivste Adresse für Ihr Büro mieten. Balkon und Fleetblick!
Eine exklusivere Adresse kann man in Hamburg wohl nicht mieten - das Bornholdhaus am Neuen Wall bietet Büroflächen der Extraklasse. Über einen repräsentativen, zweigeschossigen Eingangsbereich betretet Ihr und Eure Kunden das Gebäude und gelangt entlang der Holzvertäfelung und vorbei an einem eindrucksvollen Kronleuchter zu den Aufzügen, welche Euch in die hellen und effizient geschnittenen Büroetagen bringen. Hier findet Ihr klimatisierte Räume vor, welche mit vielen Glaselementen ausgebaut sind und eine angenehme Deckenhöhe besitzen. Auch Austrittsflächen zum Fleet sind teilweise mit dabei.
Die Lage bringt Euch viele Restaurants und Einkaufsmöglichkeiten in einer der belebtesten Straßen der Stadt. Die Alster ist ebenfalls nur wenige Schritte entfernt und lädt zu einem entspannten Spaziergang in der Mittagspause ein. Die Anbindung ist mit der Nähe zum Jungfernstieg oder zur Stadthausbrücke überragend, dort findet Ihr diverse Bus- und Bahnlinien. In der hauseigenen Tiefgarage könnt Ihr einen Stellplatz anmieten.
Meldet Euch bei Interesse gerne bei uns!
Ausstattung
- außenliegender Sonnenschutz
- Balkon/Terrasse
- Barrierefrei
- Beleuchtung über Deckenspots
- Beleuchtung über Stehleuchten
- Fahrradstellplätze
- Klimatisierung
- Kühldecken vorhanden
- Tiefgarage
- Verkabelung über Bodentanks
Besonderheiten
- Toller Ausblick
- Nachhaltigkeit
- gute ÖPNV Anbindung
- provisionspflichtig
- viel Tageslicht
- Wasserlage
Ich interessiere mich für die Immobilie BORNHOLDHAUS und würde gerne einen Besichtigungstermin vereinbaren.
Angebote in der Nähe
Hier findest du weitere Büros & Shared-Offices ganz in der Nähe.


