Asia-Haus
Willy-Brandt-Straße 49, Hamburg-Altstadt (City)
provisionsfrei
- ab 198 QM
- bis 8.008 QM
- Preis: € 21,00 - 27,00
- Nebenkosten: € 4,00
- Bezug: kurzfristig
Mietpreis ab
€ 21,00pro QM
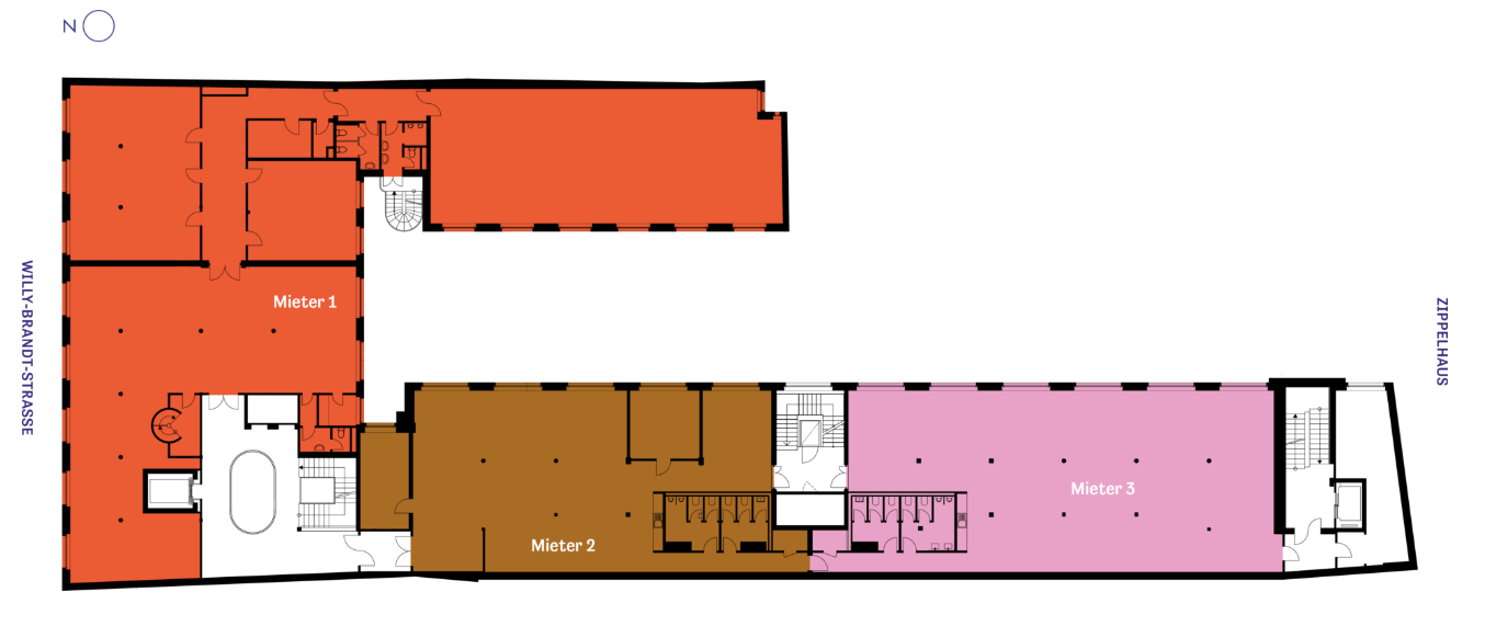
Flächenplan
| Stock | Gebäude A | Freie Mietfläche |
|---|---|---|
| 5 | 1.026 QM
![]() 1.026 QM | |
| 4 | 1.146 QM
![]() 1.146 QM | |
| 3 | 1.391 QM
1.391 QM | |
| 2 | 1.395 QM
1.395 QM | |
| 1 | 1.365 QM
1.365 QM | |
| EG | 1.122 QM
1.122 QM | |
| -1 | 563 QM
563 QM | |
Modernes Arbeiten im geschichtsträchtigen Kontorhaus - beeindruckende Büros mit besonderem Charme
Dank ausgiebiger Modernisierungsmaßnahmen erhält das Asia-Haus, welches bereits eine Geschichte von über 100 Jahren vorzeigen kann, ein neues Leben - und dass ganz im Stil von "New Work". Die denkmalgeschützte Fassade wie auch das repräsentative Foyer bleiben erhalten und verbinden so die moderne Arbeitswelt mit der Hamburger Geschichte. Das im Jugendstil gebaute Kontorhaus verleiht Eurem neuen Standort einen besonderen Charme, mit dem Ihr sicher Mitarbeiter, Kunden und Partner erstaunen werdet. Tolle Marmorstufen, prächtige Säulen und die unglaubliche Detailgenauigkeit sind dabei nur einige Aspekte. Mit dem Eintritt in die Büroflächen dürft Ihr Euch dann schließlich auf komplett kernsanierte Privaträume freuen, die Ihr im Zuge der Entkernung anschließend individuell und genau nach Euren Wünschen und Maßstäben ausbauen lassen könnt. So wird das Asia-Haus auch Eure Geschichte in sich tragen.
Darüber hinaus gibt es einen tollen Innenhof, der genügend Ruhe für eine erholsame Mittagspause in der belebten Altstadt bietet, sowie ein sich ein im Untergeschoss befindendes Café, welches für alle Mitarbeiter zugänglich ist und den perfekten Ort zum "connecten" stellt. Doch auch die Umgebung hat einiges herzugeben, denn unweit der Speicherstadt und dem Zentrum Hamburgs ist die Lage ideal sowohl für die Erreichbarkeit als auch für abwechslungsreiche Mittagspausen oder Mitarbeitertreffen.
Ausstattung
- Beleuchtung über Pendelleuchten
- Fahrradstellplätze
- innenliegender Blendschutz
- Tiefgarage
Besonderheiten
- Denkmalschutz
- Gastronomie im Haus
- gute ÖPNV Anbindung
- Provisionsfreie Anmietung
- viel Tageslicht
Ich interessiere mich für die Immobilie Asia-Haus und würde gerne einen Besichtigungstermin vereinbaren.
Angebote in der Nähe
Hier findest du weitere Büros & Shared-Offices ganz in der Nähe.

