HOLSTENHOF
Kaiser-Wilhelm-Straße 79-87, Hamburg-Neustadt
- ab 174 QM
- bis 4529 QM
- Preis: € 26,00 - 29,00
- Nebenkosten: € 4,00
- Bezug: kurzfristig
€ 26,00pro QM
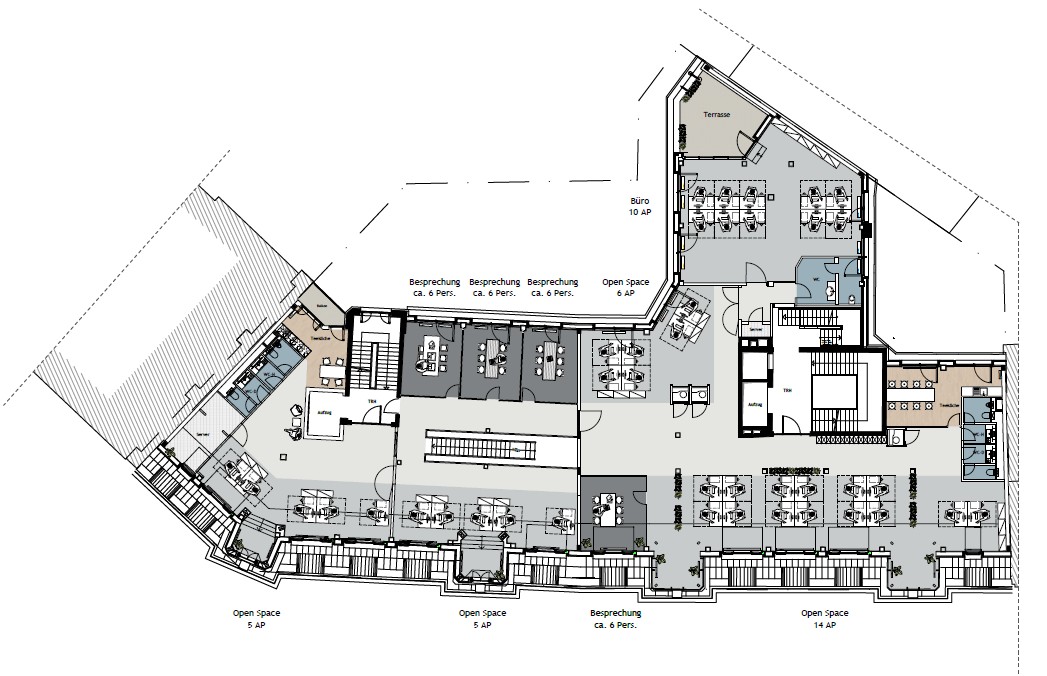
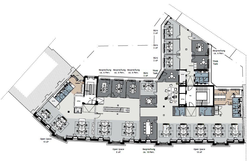
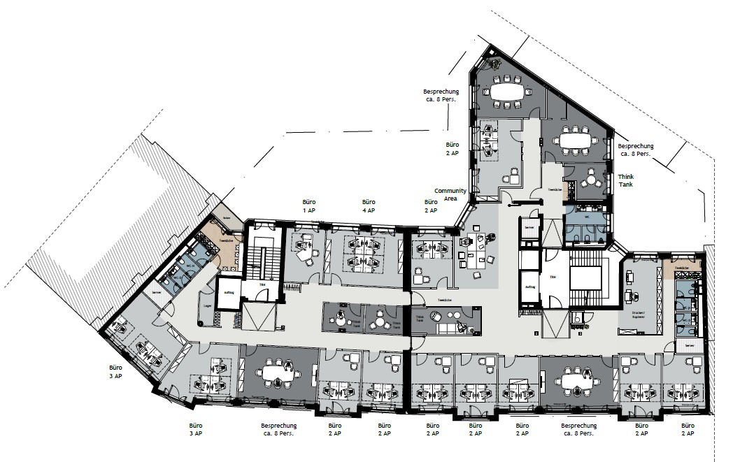
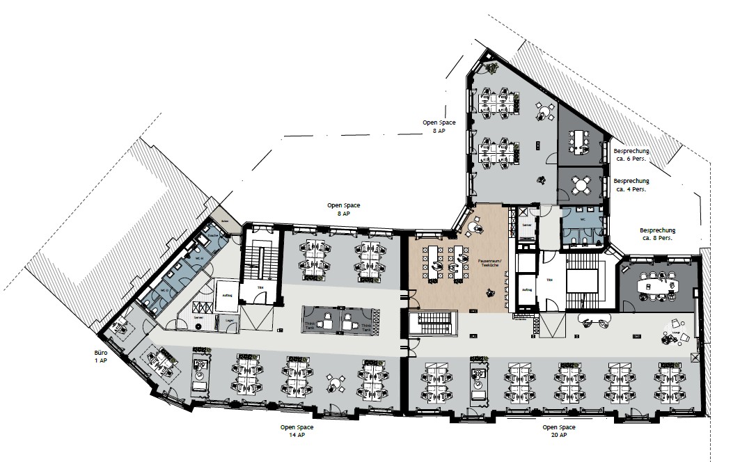
Flächenplan
| Stock | Gebäude A | Gebäude B | Freie Mietfläche |
|---|---|---|---|
| 6 | vermietet - | | |
| 5 | vermietet 454 QM
![]() 454 QM | | |
| 4 | 508 QM
![]() 637 QM
1.145 QM | | |
| 3 | 866 QM
![]() 866 QM | | |
| 2 | 1.890 QM
![]() 1.890 QM | | |
| 1 | vermietet - | | |
| EG | 174 QM
![]() vermietet 174 QM | | |
| -1 | vermietet vermietet - | | |
Büro-Loft nahe in toller Citylage. Provisionsfrei in den Holstenhof!
Mitten in der Hamburger Innenstadt wartet der Holstenhof auf Dich – ein frisch revitalisiertes Bürogebäude, das historischen Charakter mit modernen Arbeitswelten kombiniert.
Schon der sanierte Eingangsbereich mit liebevoll erhaltenen Stilelementen setzt ein Statement – und führt Dich direkt zu Deinen neuen hochwertig ausgebauten Büroflächen.
Große Panoramafenster, rund 3 Meter Deckenhöhe und viel Tageslicht sorgen für eine helle, offene Arbeitsatmosphäre. Die Flächen sind sofort bezugsfertig, werden aber vor Übergabe nochmal in Abstimmung mit Dir frisch aufbereitet – Du gibst den Feinschliff vor.
Als BREEAM-zertifiziertes Green Building steht der Holstenhof nicht nur für Stil, sondern auch für Nachhaltigkeit und zukunftsfähiges Arbeiten.
Ausstattungs-Highlights:
✔ Große Fenster & hohe Decken für viel Licht
✔ Dachterrasse & Dusche im Gebäude
✔ Zertifiziertes Green Building (BREEAM)
✔ Individuell anpassbarer Ausbau
✔ Top-Lage zwischen Gänsemarkt, Neuer Wall & Planten un Blomen
Direkt vor der Tür: Vielfältige Gastronomie, perfekte Anbindung an Bus & Bahn und die besten Adressen der Stadt.
Neugierig geworden? Dann meld Dich gern – wir zeigen Dir Deinen neuen Arbeitsplatz im Holstenhof!
Ausstattung
- außenliegender Sonnenschutz
- Barrierefrei
- Beleuchtung über Stehleuchten
- Glasfaser
- Klimatisierung
- Verkabelung über Bodentanks
Besonderheiten
- gute ÖPNV Anbindung
- Lagerflächen
- Provisionsfreie Anmietung
- viel Tageslicht
Angebote in der Nähe
Hier findest du weitere Büros & Shared-Offices ganz in der Nähe.




