Brandsende Offices
Arbeiten, wo Hamburg pulsiert – Büroflächen am Brandsende
Brandsende 2-4, Hamburg-Altstadt (City)
provisionspflichtig
- ab 133 QM
- Preis: € 23,50
- NK: € 4,00
- Bezug: kurzfristig
Mietpreis ab
€ 23,50pro QM
Übersicht
| Stock | Gebäude A | Freie Mietfläche |
|---|---|---|
| 6 | vermietet - | |
| 5 | vermietet - | |
| 4 | vermietet - | |
| 3 | vermietet - | |
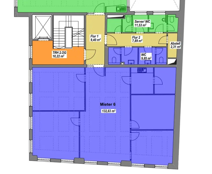
| 2 | 133 QM
![]() 133 QM | |
| 1 | vermietet - | |
| EG | - |
Arbeiten, wo Hamburg pulsiert – Büroflächen am Brandsende
Willst du ein Office, das genauso flexibel ist wie dein Business? Dann bist du hier richtig: Auf rund 133 m² im 2. Obergeschoss erwarten dich helle, modern geschnittene Räume, die du ganz nach deinen Vorstellungen nutzen kannst – egal ob Open Space, Einzelbüros oder Meetingräume. Dank der großen Fensterfronten arbeitest du in einer lichtdurchfluteten Atmosphäre mit Blick auf das pulsierende Cityleben.
Die Lage ist kaum zu toppen: Zwischen Mönckebergstraße und Binnenalster, nur wenige Schritte vom Hauptbahnhof und Jungfernstieg entfernt. Hier bist du perfekt angebunden – und mittendrin im Geschehen. Restaurants, Cafés und Shops sorgen für Abwechslung in der Mittagspause oder für entspannte After-Work-Momente.
Kurz gesagt: Ein repräsentativer Arbeitsplatz in absoluter Top-Lage, der dir alle Möglichkeiten bietet.
Ausstattung
- Glasfaser
Besonderheiten
- Gastronomie im Haus
- gute ÖPNV Anbindung
- Lagerflächen
- provisionspflichtig
- viel Tageslicht
Ich interessiere mich für die Immobilie Brandsende Offices und würde gerne einen Besichtigungstermin vereinbaren.
Angebote in der Nähe
Hier findest du weitere Büros & Shared-Offices ganz in der Nähe.
