PAULIHAUS
Work smart on St. Pauli – brandneue Büroflächen im Erstbezug
Neuer Pferdemarkt 35, Hamburg-St. Pauli
- ab 400 QM
- bis 2.527 QM
- Preis: € 23,00 - 26,00
- NK: € 4,50
- Bezug: kurzfristig
€ 23,00pro QM
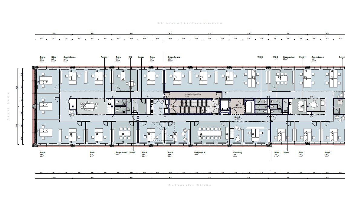
Übersicht
| Stock | Gebäude A | Gebäude B | Freie Mietfläche |
|---|---|---|---|
| 5 | vermietet - | | |
| 4 | vermietet - | | |
| 3 | 1.022 QM
![]() 1.022 QM | | |
| 2 | vermietet - | | |
| 1 | 488 QM
1.017 QM
![]() | 1.505 QM | |
| EG | vermietet - | | |
Work smart on St. Pauli – brandneue Büroflächen im Erstbezug
Direkt neben der Rindermarkthalle, an der Ecke Neuer Kamp / Neuer Pferdemarkt, entsteht mit dem Paulihaus bis Herbst 2026 ein Büro- und Geschäftshaus, das St. Pauli alle Ehre macht. Wo früher zwei alte Backsteingebäude standen, zieht bald modernes Arbeiten mit urbanem Charakter ein.
Das Gebäude überzeugt mit roter Backsteinfassade, großen Glasfronten und einer hellen, offenen Architektur, die sich perfekt ins Viertel einfügt. Innen erwarten euch hochwertige Neubauflächen mit modernster Gebäudetechnik, nachhaltiger Kühlung und flexiblen Grundrissen – ganz so, wie man’s von einem neuen St. Pauli-Spot erwartet.
Ob Start-up, Agentur oder etablierter Player – hier bekommt ihr Top-Ausstattung, Tiefgaragenplätze, Aufzug und ein repräsentatives Entree mitten in Hamburgs kreativstem Viertel.
Und die Lage - mehr geht nicht. Zwischen Millerntor, Schanze, Bunker, Karoviertel und Rindermarkthalle seid ihr mittendrin statt nur dabei – mitten in St. Pauli.
Wenn ihr Lust habt, euch die Flächen anzusehen: Ruft uns einfach an – wir zeigen euch euer neues Büro auf St. Pauli.
Ausstattung
- außenliegender Sonnenschutz
- Barrierefrei
- Bauteilkühlung vorhanden
- Beleuchtung über Deckenspots
- Beleuchtung über Stehleuchten
- Fahrradstellplätze
- Glasfaser
- Tiefgarage
Besonderheiten
- Gastronomie im Haus
- Nachhaltigkeit
- gute ÖPNV Anbindung
- Provisionsfreie Anmietung
- viel Tageslicht
Angebote in der Nähe
Hier findest du weitere Büros & Shared-Offices ganz in der Nähe.

