Planckstudios P13
Planckstraße 13, Hamburg-Ottensen
- ab 281 QM
- bis 1199 QM
- Preis: individuell
- Nebenkosten: € 3,30
- Bezug: kurzfristig
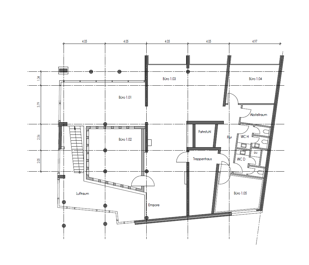
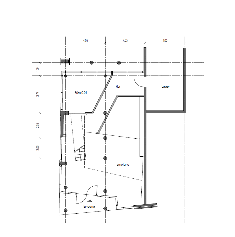
Flächenplan
| Stock | Gebäude A | Gebäude B | Freie Mietfläche |
|---|---|---|---|
| 1 | 281 QM
| 281 QM | |
| EG | 611 QM
![]() 307 QM
![]() 918 QM | | |
Altes Industrieloft mit Galerien im Herzen von Hamburg-Ottensen mieten.
Du suchst nach einem ganz besonderen Arbeitsplatz? Dann schnapp Dir jetzt Deine Chance auf eines der bekanntesten Lofts in Hamburg: Planckstraße P13. Inmitten des charmanten Ottensens findest Du hier ein Büro mit Geschichte – und jede Menge Raum für Deine Ideen.
Die denkmalgeschützte ehemalige Gerberei wurde in den 90ern aufwendig saniert und durch einen modernen Glasanbau ergänzt. Das Ergebnis? Eine einzigartige Mischung aus Industriecharme und zeitgemäßem Design. Die offenen Loftflächen mit viel Glas und Metall schaffen nicht nur eine inspirierende Atmosphäre, sondern bieten Dir und Deinem Team eine ganz besondere Arbeitsumgebung – auf mehreren Ebenen, mit Galerie, kühler Brise dank Klimageräten und jeder Menge Licht.
Ob kreatives Brainstorming im Vorderhaus oder fokussiertes Arbeiten in den ruhigen „Cubes“ im Hinterhaus – hier findest Du den passenden Raum für jede Idee. Natürlich kannst Du die Flächen nach Deinen Vorstellungen mitgestalten – sie werden frisch renoviert übergeben.
Und das Beste? Du bist nur ein paar Schritte entfernt von Ottensens lebendiger Gastro- und Shoppingwelt. Also: Urban, ruhig und kreativ – genau wie Du.
Klingt nach Deinem neuen Lieblingsplatz zum Arbeiten? Dann melde Dich bei uns – wir freuen uns darauf, Dir die Fläche zu zeigen!
Ausstattung
- Barrierefrei
- Beleuchtung über Stehleuchten
- Fahrradstellplätze
- Glasfaser
- innenliegender Blendschutz
- Klimatisierung
- E-Ladesäulen
Besonderheiten
- Grüne Umgebung
- gute ÖPNV Anbindung
- Lagerflächen
- Provisionsfreie Anmietung
- Ruhige Lage
Angebote in der Nähe
Hier findest du weitere Büros & Shared-Offices ganz in der Nähe.

