Bürohaus III
Lachnerstraße 2, Spohrstraße 2-6, Hamburg-Barmbek-Süd
provisionsfrei
- ab 106 QM
- bis 2.558 QM
- Preis: € 10,50 - 11,90
- Nebenkosten: € 3,30
- Bezug: kurzfristig
Mietpreis ab
€ 10,50pro QM
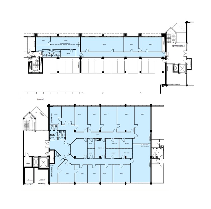
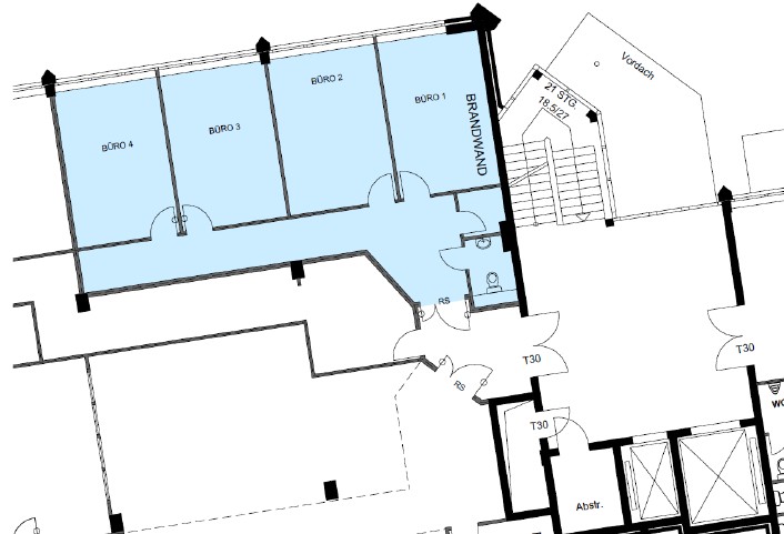
Flächenplan
| Stock | Gebäude A | Gebäude B | Gebäude C | Gebäude D | Freie Mietfläche |
|---|---|---|---|---|---|
| 4 | vermietet vermietet | vermietet 383 QM
636 QM
1.019 QM | | ||
| 3 | vermietet vermietet vermietet vermietet - | | |||
| 2 | vermietet vermietet vermietet vermietet vermietet - | | |||
| 1 | vermietet vermietet vermietet vermietet - | | |||
| EG | 513 QM
![]() 920 QM
![]() 106 QM
![]() vermietet 1.539 QM | |
Moderne Büroräume der AlsterCity in Barmbek-Süd mieten!
Das 1990 erbaute Bürohaus in Barmbek-Süd, liegt mit seinen 15.600 m² Mietfläche zwischen den beliebten Stadtteilen Uhlenhorst und Winterhude. Auch dieser Standort profitiert von allen Vorzügen der um die Ecke liegenden AlsterCity. Auf bis zu fünf Etagen stehen Euch zu einem vergleichbar fairen Mietpreis moderne und zeitgemäße Büroflächen zur Verfügung.
Der Mix macht's: Der gesamte Komplex um die Spohrstraße herum, sowie seine unzähligen ruhigen Grünanlagen werden in die Businesswelt der AlsterCity eingebunden. Ausgestattet mit Personen- und Lastenaufzügen bietet Euch das Geschäftshaus ausreichend Lagerflächen und Parkmöglichkeiten. Die traditionelle Fassade, versehen mit großen Fensterelementen, bietet Euch obendrein ein hohes Maß an Flexibilität bei Eurer Raumgestaltung. Der Ausbau Eurer neuen Büroräume erfolgt selbstverständlich nach Euren Wünschen.
Ausstattung
- Barrierefrei
- Beleuchtung über Deckenspots
- Fahrradstellplätze
- Glasfaser
- innenliegender Blendschutz
- Tiefgarage
Besonderheiten
- Toller Ausblick
- Grüne Umgebung
- Hundefreundlich
- Lagerflächen
- Provisionsfreie Anmietung
- Ruhige Lage
- viel Tageslicht
Ich interessiere mich für die Immobilie Bürohaus III und würde gerne einen Besichtigungstermin vereinbaren.
Angebote in der Nähe
Hier findest du weitere Büros & Shared-Offices ganz in der Nähe.


