AlsterCity
Osterbekstraße 90 a-c, Weidestraße 122 a-d, Hamburg-Barmbek-Süd
- ab 74 QM
- bis 16.078 QM
- Preis: € 13,80 - 14,50
- Nebenkosten: € 3,90
- Bezug: kurzfristig
€ 13,80pro QM
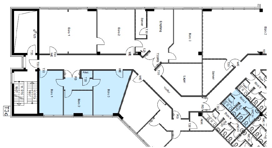
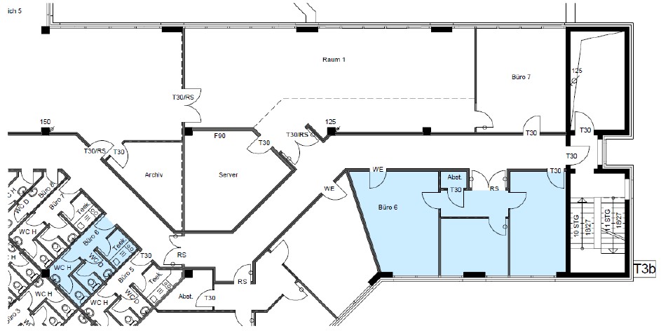
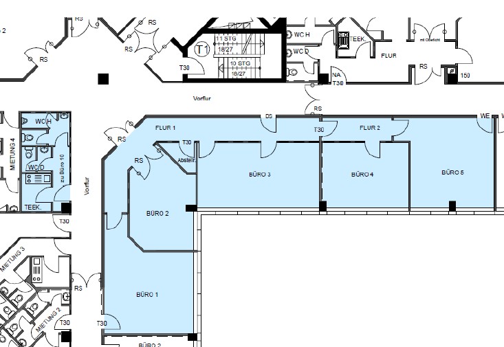
Flächenplan
| Stock | Gebäude A | Gebäude B | Gebäude C | Gebäude D | Gebäude E | Gebäude F | Freie Mietfläche |
|---|---|---|---|---|---|---|---|
| 15 | vermietet - | | |||||
| 14 | vermietet - | | |||||
| 13 | vermietet - | | |||||
| 12 | vermietet - | | |||||
| 11 | vermietet 1.182 QM
1.182 QM | | |||||
| 10 | vermietet vermietet - | | |||||
| 9 | 1.446 QM
| vermietet 1.446 QM | | ||||
| 8 | 659 QM
| vermietet vermietet vermietet vermietet 659 QM | | ||||
| 7 | 977 QM
| vermietet vermietet vermietet vermietet 977 QM | | ||||
| 6 | vermietet vermietet vermietet vermietet vermietet 2.542 QM
1.006 QM
3.548 QM | | |||||
| 5 | 78 QM
![]() 77 QM
![]() 780 QM
195 QM
![]() 404 QM
![]() 150 QM
![]() 1.684 QM | | |||||
| 4 | 1.120 QM
125 QM
| 107 QM
![]() 74 QM
![]() 1.008 QM
177 QM
vermietet 2.611 QM | | ||||
| 3 | 1.006 QM
| 1.550 QM
| 460 QM
| 380 QM
| vermietet vermietet 3.396 QM | | |
| 2 | vermietet vermietet 575 QM
vermietet vermietet vermietet 575 QM | | |||||
| 1 | vermietet vermietet vermietet vermietet vermietet vermietet vermietet - | | |||||
| EG | - | ||||||
preiswerte und moderne Büroflächen provisionsfrei in Barmbek - individueller Ausbau!
Vorbei am freundlichen Concierge-Service, gelangt Ihr in eine kleine hausinterne Shoppingmall mit einer leckeren Kantine. Die AlsterCity bietet Euch zusätzlich ein Fitness-Center, einen Supermarkt, einen Friseur, eine Schneiderei und diverse andere Shops. Hinzu kommen mehrere Arztpraxen und Physiotherapeuten, welche ebenfalls im Haus ansässig sind.
Abgesehen davon, dass Ihr hier ausreichend Parkplätze anmieten könnt, wird das Thema „Parkplatzsuche für Kunden“ ad acta gelegt. Eure Kunden können in der AlsterCity gerne für zwei Stunden auf einem der zahlreichen Besucherparkplätze kostenfrei parken.
Zum Ausbaustandard gehört u.a. eine arbeitsplatzgerechte Beleuchtung, ein innenliegender Sonnenschutz, welcher teilweise durch einen außenliegenden Sonnenschutz ergänzt wird, eine zeitgemäße EDV-Verkabelung über Fensterbankkanäle sowie eine moderne und voll ausgestattete Teeküche pro Mieteinheit.
Ausstattung
- Barrierefrei
- Beleuchtung über Stehleuchten
- Fahrradstellplätze
- Glasfaser
- innenliegender Blendschutz
- E-Ladesäulen
- Lastenaufzug
- Tiefgarage
Besonderheiten
- Toller Ausblick
- Gastronomie im Haus
- Grüne Umgebung
- gute ÖPNV Anbindung
- Hundefreundlich
- Lagerflächen
- Provisionsfreie Anmietung
- Ruhige Lage
- viel Tageslicht
Angebote in der Nähe
Hier findest du weitere Büros & Shared-Offices ganz in der Nähe.






