Fleetinsel-Kontor
Alter Steinweg 1-3, Hamburg-Neustadt
- ab 406 QM
- bis 813 QM
- Preis: € 23,28 - 27,00
- Nebenkosten: € 5,95
- Bezug: kurzfristig
€ 23,28pro QM
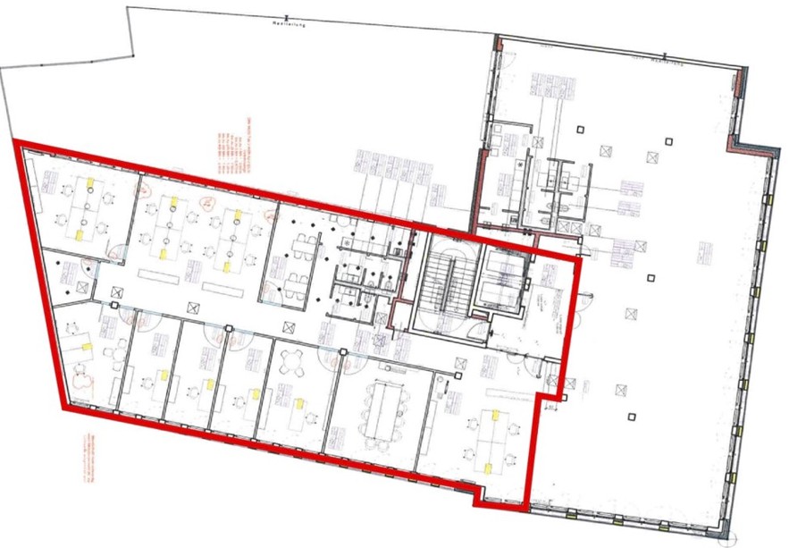
Flächenplan
| Stock | Gebäude A | Gebäude B | Freie Mietfläche | |
|---|---|---|---|---|
| 6 | vermietet - | | ||
| 5 | vermietet - | | ||
| 4 | vermietet - | | ||
| 3 | 407 QM
![]() 407 QM | | ||
| 2 | 406 QM
![]() vermietet 406 QM | | ||
| 1 | vermietet - | | ||
| EG | vermietet - | | ||
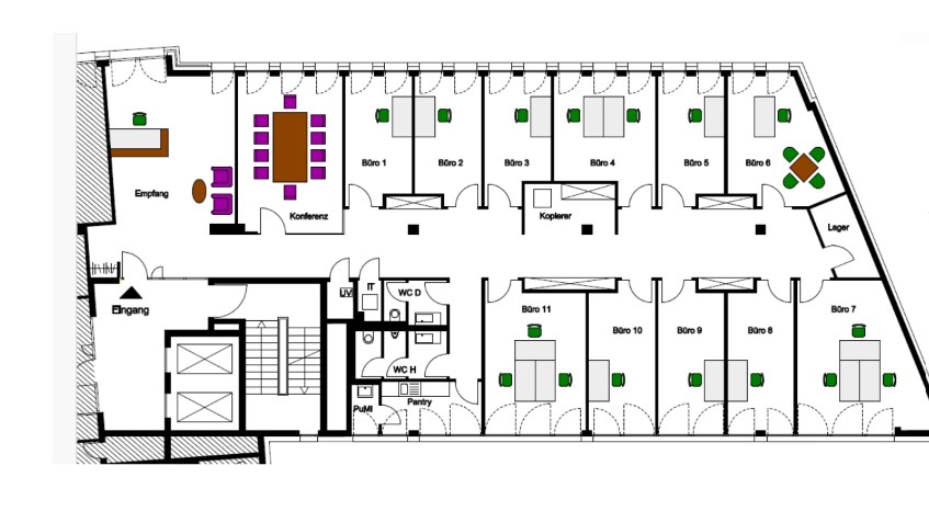
hochwertige und moderne Citybüros - helle Räume mit einer Top-Anbindung!
Das Haus ist nach dem "DGNB-Standard" als Green-Building zertifiziert worden und schreibt somit auch das Thema Nachhaltigkeit recht groß. Der begrünte Innenhof mit seiner ruhigen und idyllischen Ader passt da ganz gut zu. Über einen schicken und wirklich modernen Eingangsbereich gelangt ihr in das Haus. Von dort bringen Euch 2 Fahrstühle in die modernen und hochwertig ausgebauten Büroflächen. Die Büros sind offen gestaltet, verfügen aber auch über abgetrennte Bereiche wenn dann doch mal etwas konzentrierter gearbeitet werden darf. Viel Glas, coole Beleuchtungselemente, große Fenster und ein bisschen Holz bilden den Charakter der Büros im Fleetinsel Kontor.
Die Räume sind gut nutzbar, da die Grundrisse eines Neubaus in den meisten Fällen den Fokus auf Flächeneffizienz legen. Hier ist also vieles möglich und das, in toller Lage Hamburgs und zu einem recht fairen Mietpreis für den heutigen Markt.
Habt ihr Interesse an einer Besichtigung? Dann lasst uns wissen wann und wir kümmern uns um einen Termin vor Ort.
Ausstattung
- außenliegender Sonnenschutz
- Barrierefrei
- Beleuchtung über Stehleuchten
- Fahrradstellplätze
- Tiefgarage
- Verkabelung über Bodentanks
Besonderheiten
- Nachhaltigkeit
- gute ÖPNV Anbindung
- Lagerflächen
- provisionspflichtig
Angebote in der Nähe
Hier findest du weitere Büros & Shared-Offices ganz in der Nähe.

