Tri Towers 94
Moderne Büroflächen in den Tri Towers – Hamburg-Hammerbrook
Hammerbrookstraße 90- 94, Hamburg-Hammerbrook
- ab 672 QM
- bis 1.599 QM
- Preis: € 14,50
- NK: € 3,50
- Bezug: kurzfristig
€ 14,50pro QM
Übersicht
| Stock | Gebäude A | Freie Mietfläche |
|---|---|---|
| 10 | vermietet - | |
| 9 | vermietet - | |
| 8 | vermietet - | |
| 7 | vermietet - | |
| 6 | vermietet - | |
| 5 | vermietet - | |
| 4 | vermietet - | |
| 3 | vermietet - | |
| 2 | vermietet - | |
| 1 | 927 QM
![]() 927 QM | |
| EG | 672 QM
![]() 672 QM | |
Moderne Büroflächen in den Tri Towers – Hamburg-Hammerbrook
Drei Türme, viele Möglichkeiten – mitten in Hammerbrook stehen die Tri Towers. Und auch wenn das Viertel eher klassisch tickt, stechen diese Gebäude architektonisch sofort ins Auge. Seit 2005 bringen sie frischen Wind in die City-Süd – und jede Menge Raum für euch und eure Ideen.
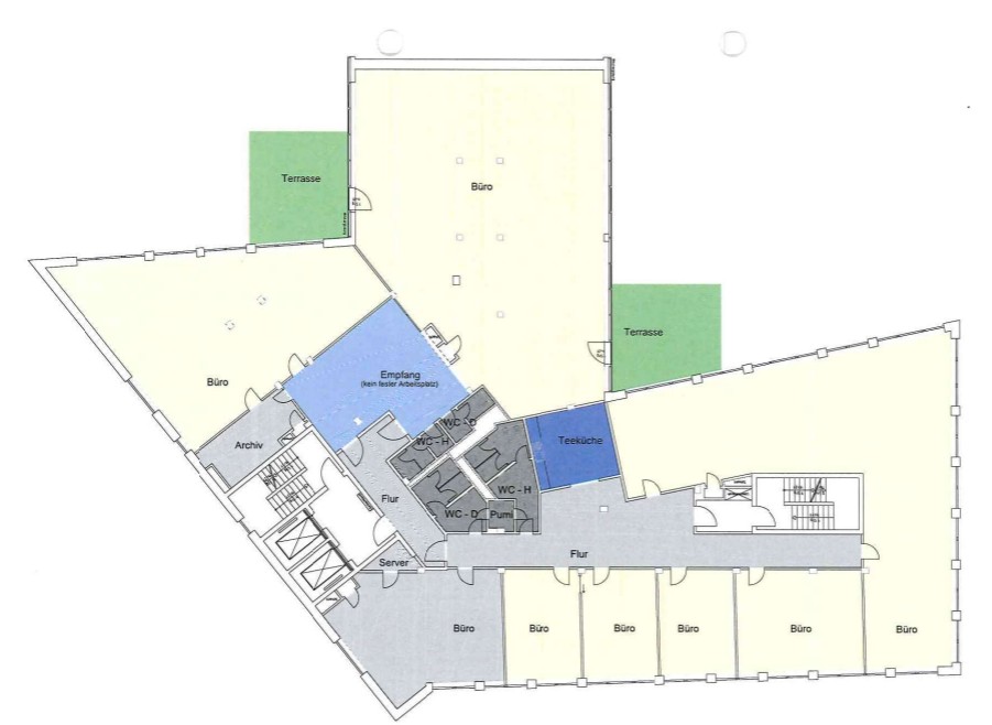
Die einzelnen Etagen bieten rund 900 m² – und wenn’s mal mehr sein darf, lassen sich die Flächen in den unteren Etagen der Türme easy miteinander verbinden. Ihr müsst also nicht durchs Treppenhaus brüllen, wenn euer Team größer wird.
Der Empfang? Großzügig, modern und einladend. Und von dort bringen euch die Aufzüge direkt in eure Etage. Alles, was ihr an moderner Büroinfrastruktur braucht, bekommt ihr hier: smarte EDV-Verkabelung, Bodentanks, außenliegenden Sonnenschutz und eine Pantry, die zum kurzen Durchatmen oder Kaffee mit Kolleg:innen einlädt.
Die Anbindung ist ebenfalls on point – ganz gleich, ob ihr mit Bus, Bahn oder Auto kommt: Zur S-Bahn müsst ihr nicht mal über die Straße, und die A1, A7 und A255 sind nur ein paar Minuten entfernt.
Und ja – wir sagen’s gern nochmal: Hammerbrooklyn wird sich verändern. Die Gegend rund um die Station Hammerbrook ist auf dem Sprung. Wer jetzt kommt, ist vorne mit dabei.
Ihr wollt Zukunft gestalten? Dann lasst uns loslegen – wir freuen uns auf eure Ideen!
Ausstattung
- außenliegender Sonnenschutz
- Barrierefrei
- Beleuchtung über Stehleuchten
- Fahrradstellplätze
- Glasfaser
- Tiefgarage
- Verkabelung über Bodentanks
Besonderheiten
- Toller Ausblick
- Gastronomie im Haus
- gute ÖPNV Anbindung
- Lagerflächen
- Provisionsfreie Anmietung
- viel Tageslicht
Angebote in der Nähe
Hier findest du weitere Büros & Shared-Offices ganz in der Nähe.

