JOBO ELBE
Moderne Büros mit Elbblick inmitten des Portugiesenviertels provisionsfrei mieten.
Johannisbollwerk 14-16, Hamburg-Neustadt
- ab 250 QM
- bis 1.116 QM
- Preis: individuell
- NK: € 5,00
- Bezug: flexibel
Übersicht
| Stock | Gebäude A | Gebäude B | Freie Mietfläche |
|---|---|---|---|
| 6 | 261 QM
![]() 261 QM | | |
| 5 | 270 QM
![]() 270 QM | | |
| 4 | vermietet - | | |
| 3 | vermietet - | | |
| 2 | 335 QM
![]() 335 QM | | |
| 1 | 250 QM
![]() 250 QM | | |
| EG | - | ||
Moderne Büros mit Elbblick inmitten des Portugiesenviertels provisionsfrei mieten.
Perfekte Erreichbarkeit: Bus & Bahn sind nur wenige Gehminuten entfernt, für Autofahrer gibt es Stellplätze in der hauseigenen Tiefgarage.
Kulinarische Vielfalt: Von unzähligen Restaurants bis zum nahen REWE – die Mittagspause wird garantiert nicht langweilig.
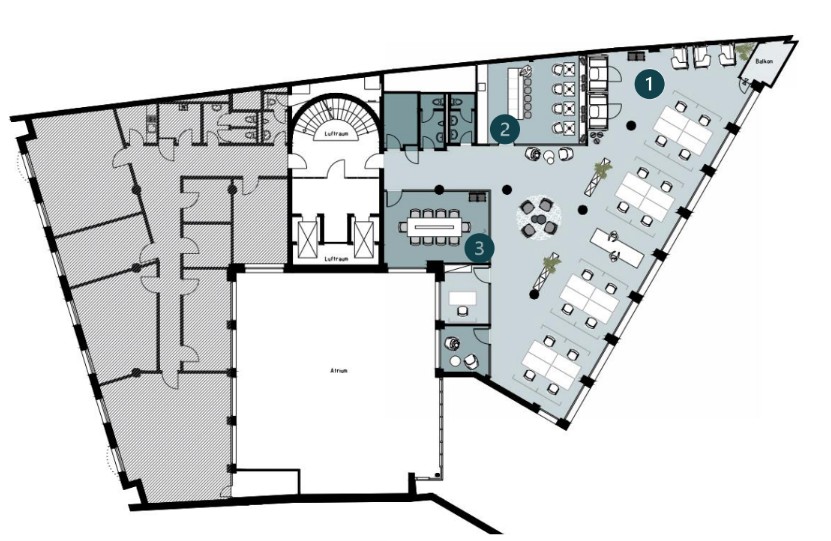
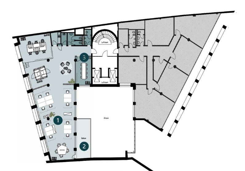
Die Büroflächen überzeugen mit flexiblen Grundrissen, einem repräsentativen Eingangsbereich, zwei gläsernen Aufzügen und variabler Ausstattung nach Euren Wünschen. Highlights: Hafenblick (aus den oberen Geschossen), große Fenster, Bodentanks für strukturierte Verkabelung, Lagerflächen und absolute Barrierefreiheit.
Hier trifft maritimes Flair auf moderne Arbeitswelten – kommt vorbei und überzeugt Euch selbst!
Ausstattung
- außenliegender Sonnenschutz
- Barrierefrei
- Beleuchtung über Stehleuchten
- Fahrradstellplätze
- Glasfaser
- Tiefgarage
- Verkabelung über Bodentanks
Besonderheiten
- Toller Ausblick
- Elbblick
- gute ÖPNV Anbindung
- Lagerflächen
- Provisionsfreie Anmietung
- Wasserlage
Angebote in der Nähe
Hier findest du weitere Büros & Shared-Offices ganz in der Nähe.



