NW36
Charmante Büroflächen im Herzen der Stadt: Mieten in Hamburg am Neuen Wall!
Neuer Wall 36, Hamburg-Altstadt (City)
- ab 121 QM
- Preis: € 26,00
- NK: € 4,80
- Bezug: flexibel
€ 26,00pro QM
Übersicht
| Stock | Gebäude A | Freie Mietfläche |
|---|---|---|
| 5 | vermietet - | |
| 4 | vermietet - | |
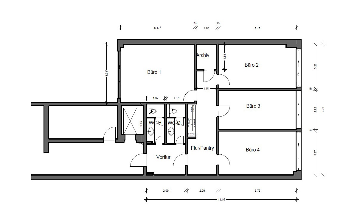
| 3 | 121 QM
![]() 121 QM | |
| 2 | vermietet - | |
| 1 | vermietet - | |
| EG | vermietet - | |
Charmante Büroflächen im Herzen der Stadt: Mieten in Hamburg am Neuen Wall!
Am renommierten Neuen Wall 36, einer der bekanntesten Luxusstraßen Hamburgs, erwartet euch ein repräsentatives Bürogebäude in absoluter Premiumlage – nur wenige Schritte von der Binnenalster, dem Jungfernstieg und der Rathauspassage entfernt.
Die modernen Büroflächen verbinden hochwertige Ausstattung mit hanseatischem Understatement – perfekt für Unternehmen, die auf eine stilvolle Umgebung und zentrale Lage setzen. Ein gepflegtes Entrée, ein Personenaufzug sowie helle, effizient geschnittene Räume bieten den passenden Rahmen für fokussiertes Arbeiten und einen repräsentativen Außenauftritt.
✔ Top-Lage am Neuen Wall – zwischen City, Alster & HafenCity
✔ Moderne Büros mit hochwertiger Ausstattung
✔ Gute Belichtung durch große Fensterfronten
✔ Vielfältige Gastronomie & Shopping direkt vor der Tür
✔ Perfekte ÖPNV-Anbindung (Jungfernstieg, Rathaus, Stadthausbrücke)
Ein Bürostandort, der Image, Komfort und Lage optimal verbindet – Neuer Wall 36 ist genau der richtige Ort für Teams mit Anspruch.
Neugierig? Dann meldet euch gern für einen Besichtigungstermin – wir freuen uns auf euch!
Besonderheiten
- gute ÖPNV Anbindung
- Provisionsfreie Anmietung
- viel Tageslicht
- Wasserlage
Angebote in der Nähe
Hier findest du weitere Büros & Shared-Offices ganz in der Nähe.
