NW41
Neuer Wall 41, Hamburg-Neustadt
- ab 289 QM
- Preis: € 32,50
- Nebenkosten: € 6,50
- Bezug: kurzfristig
€ 32,50pro QM
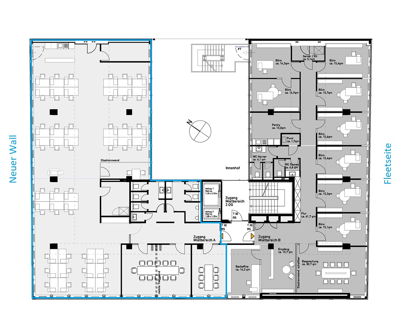
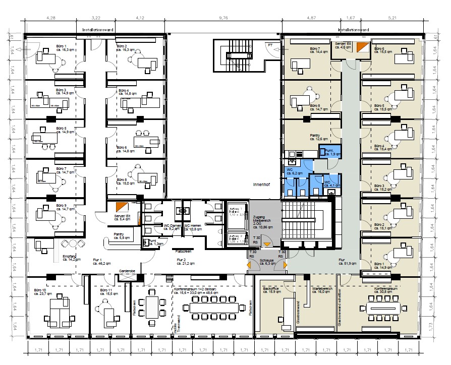
Flächenplan
| Stock | Gebäude A | Freie Mietfläche |
|---|---|---|
| 6 | vermietet - | |
| 5 | vermietet - | |
| 4 | vermietet - | |
| 3 | vermietet vermietet | - |
| 2 | vermietet 289 QM
![]() | 289 QM |
| 1 | vermietet - | |
| EG | - |
hochwertige Büros direkt am Neuen Wall mieten. Topausbau nach Mieterwunsch.
Dieses hochwertige und repräsentative Büro- und Geschäftshaus befindet sich in absoluter Toplage der Hamburger Innenstadt – direkt an der bekannten Flaniermeile Neuer Wall und den eleganten Alsterarkaden.
Deine neuen Büroflächen erreichst Du über einen modernen und einladenden Eingangsbereich. Zwei Personenaufzüge bringen Dich bequem in Deine Etage – dort erwarten Dich stilvolle und hochwertig ausgestattete Räume, die keine Wünsche offenlassen.
Der Ausbau erfolgt in enger Abstimmung mit Dir und Deinen Anforderungen – ganz individuell. Der Vermieter legt dabei großen Wert auf Qualität, liebevolle Details und eine hochwertige Umsetzung. In diesem Haus kommen nur erstklassige Materialien zum Einsatz – damit Du Dich rundum wohlfühlen kannst.
Ausstattung
- außenliegender Sonnenschutz
- Barrierefrei
- Bauteilkühlung vorhanden
- Beleuchtung über Stehleuchten
- Glasfaser
- Tiefgarage
- Verkabelung über Bodentanks
Besonderheiten
- Alsterblick
- gute ÖPNV Anbindung
- Provisionsfreie Anmietung
- viel Tageslicht
- Wasserlage
Angebote in der Nähe
Hier findest du weitere Büros & Shared-Offices ganz in der Nähe.
