GoFa
Frankenstraße 3-7, Gotenstraße 10-12, Hamburg-Hammerbrook
- ab 246 QM
- bis 4038 QM
- Preis: € 14,00 - 14,50
- Nebenkosten: € 3,50
- Bezug: kurzfristig
€ 14,00pro QM
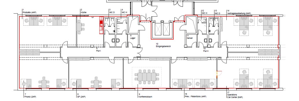
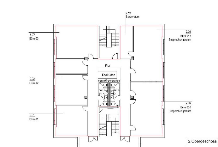
Flächenplan
| Stock | Gebäude A | Gebäude B | Gebäude C | Gebäude D | Freie Mietfläche |
|---|---|---|---|---|---|
| 6 | vermietet vermietet - | | |||
| 5 | vermietet 585 QM
![]() | vermietet 585 QM | | ||
| 4 | 585 QM
![]() 395 QM
![]() 680 QM
![]() 1.660 QM | | |||
| 3 | vermietet vermietet - | | |||
| 2 | 260 QM
| 388 QM
![]() 348 QM
![]() 551 QM
1.547 QM | | ||
| 1 | vermietet vermietet vermietet - | | |||
| EG | 246 QM
![]() vermietet vermietet 246 QM | | |||
Moderne und wirtschaftliche Büros in citynaher Lage in Hammerbrook mieten.
Der Name ist Programm, setzt sich das Objekt doch aus zwei unterschiedlichen Bauteilen (einer zur Frankenstraße, einer zur Gotenstraße) zusammen. Diese können bei Bedarf aber auch miteinander verbunden werden. Beide Bauteile werden über eigene, modern gestaltete Eingangsbereiche erschlossen. Von dort aus bringt Euch einer der Personenaufzüge in die neuen Mietetagen. Eine gute Belichtung durch regelmäßig angeordnete, große Fenster ist gegeben und sorgt in Kombination mit dem modernen und individuellen Ausbaustandard für Büros zum Wohlfühlen. Teilweise eingesetzte Glaselemente sorgen für eine gute Transparenz an Eurem neuen Arbeitsplatz.
Bequemes Parken versteht sich an diesem Bürostandort von selbst. So stehen in der hauseigenen Tiefgarage sowie im Innenhof PKW-Stellplätze zur Anmietung zur Verfügung.
Interesse? Dann meldet Euch gerne bei uns.
Ausstattung
- außenliegender Sonnenschutz
- Barrierefrei
- Beleuchtung über Stehleuchten
- Fahrradstellplätze
- Glasfaser
- E-Ladesäulen
Besonderheiten
- gute ÖPNV Anbindung
- Lagerflächen
- Provisionsfreie Anmietung
- Ruhige Lage
Angebote in der Nähe
Hier findest du weitere Büros & Shared-Offices ganz in der Nähe.
Hammerbrookstraße 5/ Neues Steintor
Hammerbrookstraße 5, HH-Hammerbrook
ab 645 QM
bis 1290 QM- Besichtigung




