Australhaus
Poststraße 17, Hamburg-Neustadt
- ab 60 QM
- bis 659 QM
- Preis: individuell
- Nebenkosten: € 0,00
- Bezug: kurzfristig
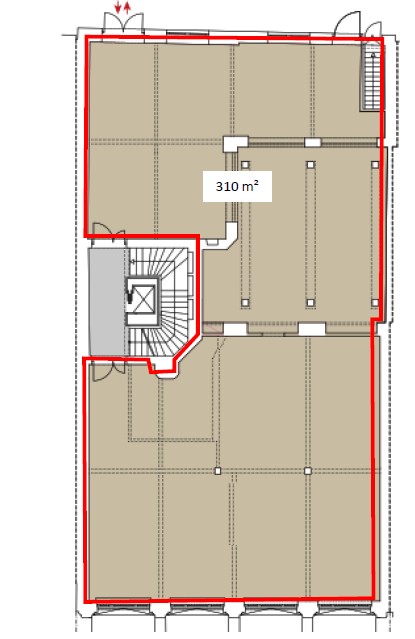
Flächenplan
| Stock | Gebäude A | Freie Mietfläche |
|---|---|---|
| 5 | 289 QM
![]() 289 QM | |
| 4 | 60 QM
![]() 60 QM | |
| 3 | vermietet - | |
| 2 | vermietet - | |
| 1 | 310 QM
![]() 310 QM | |
| EG | - |
Büroflächen in der Poststraße 17 – Arbeiten im Herzen der Hamburger Innenstadt
Die Büroflächen bieten helle Arbeitsbereiche, effiziente Grundrisse und flexible Nutzungsmöglichkeiten für moderne Unternehmen. Ob klassische Einzelbüros, Kombibüros oder offene Arbeitswelten – die Flächen lassen sich individuell an unterschiedliche Arbeitskonzepte anpassen.
Was erwartet Euch?
Zentrale Innenstadtlage nahe Jungfernstieg und Rathaus
Helle Büroflächen mit großen Fensterfronten
Flexible Grundrissgestaltung – Einzelbüro bis Open Space
Repräsentativer Standort im Passagenviertel
Gastronomie, Cafés und Einkaufsmöglichkeiten direkt vor der Tür
Hervorragende ÖPNV-Anbindung (Jungfernstieg und Rathausmarkt fußläufig erreichbar)
Die Poststraße gehört zu den traditionsreichen Straßen der Hamburger Innenstadt und verbindet das Passagenviertel mit dem Jungfernstieg. Zahlreiche Restaurants, Cafés und Einkaufsmöglichkeiten sorgen für ein lebendiges Umfeld und eine hohe Aufenthaltsqualität.
Die Büroflächen in der Poststraße 17 bieten einen repräsentativen Standort im Herzen der Hamburger Innenstadt – ideal für Unternehmen, die zentral, flexibel und in bester Nachbarschaft arbeiten möchten.
Ausstattung
- Glasfaser
Besonderheiten
- gute ÖPNV Anbindung
- viel Tageslicht
Angebote in der Nähe
Hier findest du weitere Büros & Shared-Offices ganz in der Nähe.


