CONVENTLOFTS in der alten Bäckerei
Conventstraße 8-10, Hamburg-Hohenfelde
- ab 312 QM
- bis 629 QM
- Preis: € 19,50
- Nebenkosten: € 2,80
- Bezug: kurzfristig
€ 19,50pro QM
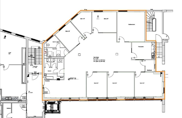
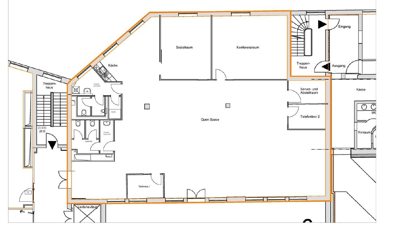
Flächenplan
| Stock | Gebäude A | Gebäude B | Freie Mietfläche |
|---|---|---|---|
| 4 | vermietet - | | |
| 3 | vermietet - | | |
| 2 | vermietet 312 QM
![]() 312 QM | | |
| 1 | 317 QM
![]() vermietet 317 QM | | |
| EG | vermietet vermietet - | | |
U-Bahn Wartenau: kreative Lofts mit industriellem Charme mieten. Dachterrasse für alle Mieter.
Aus ALT mach NEU - wie man an den obigen Bildern sieht! Die Visualisierungen verdeutlichen den beeindruckenden Vorher-Nachher-Effekt. Ab 2019 stehen die Conventlofts in der alten Bäckerei in neuem Gewand zur Verfügung.
Die ehem. Lagerflächen erhalten neben einer neuen, modernen Fassade auch einen gläsernen Aufzug, der Euch und Eure Kollegen in die Büroetagen befördert. Die vorhandenen Sprossenfenster werden durch neue, moderne Fenster im gleichen (Sprossen-) Stil ausgetauscht und vergrößert - teils sogar bodentief, sodass viel Licht ins Innere des Gebäudes gelangt. Insbesondere die Deckenhöhen von bis zu 3,75 Metern tragen ihren Teil dazu bei. Der Vermieter achtet peinlich genau darauf, dass der industrielle Charme der alten Bäckerei hier nicht verloren geht - Industrie-chic trifft modernes Loft!
Die Aufteilung und Ausstattung der Büroflächen erfolgt in enger Absprache und an die Bedürfnisse der zukünftigen Mieter - eine Anbindung an Glasfaser ist gegeben!
Der vorhandene Lastenaufzug bleibt erhalten, sodass auch schwere Materiallieferungen kein Problem darstellen. Die Räume sind dank weniger Stützen flexibel aufteilbar. Eine OpenSpace-Nutzung ist zu empfehlen, aber kein Muss.
Stellplätze stehen auf dem Areal zur Anmietung zur Verfügung und eine gemeinschaftlich genutzte Dachterrasse für alle Mieter gibt es im 4. Stock ebenfalls! Wir wünschen Euch viel Spaß beim Grillen!
Ausstattung
- Balkon/Terrasse
- Barrierefrei
- Beleuchtung über Deckenspots
- Dachterrasse für alle Mieter
- Fahrradstellplätze
- Glasfaser
- innenliegender Blendschutz
- Lastenaufzug
Besonderheiten
- Toller Ausblick
- Denkmalschutz
- Grüne Umgebung
- gute ÖPNV Anbindung
- Provisionsfreie Anmietung
- Ruhige Lage
- viel Tageslicht
Angebote in der Nähe
Hier findest du weitere Büros & Shared-Offices ganz in der Nähe.

